The Plains

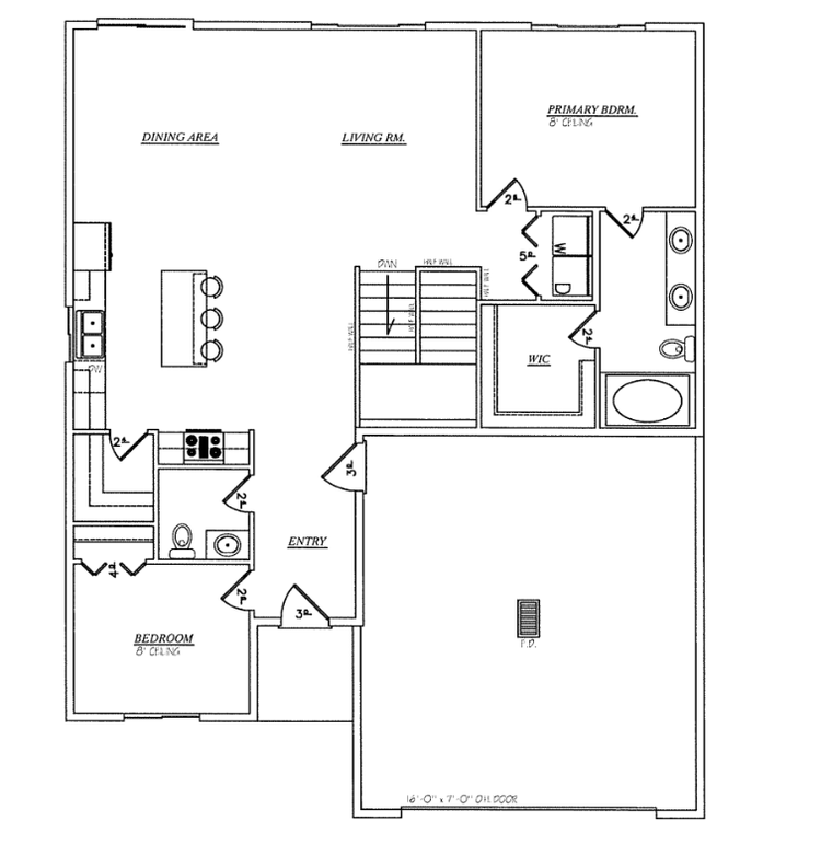
4 Bed | 3 Bath | 2676 SqFt | Rambler

This thoughtfully designed home brings convenience and comfort together on the main level, featuring an open-concept kitchen with a center island, a primary suite with a walk-in closet and private bath, plus a second bedroom, half bath, and main-floor laundry.

The finished basement expands your living space with two additional bedrooms, a full bath, a spacious family room for gatherings, and plenty of extra storage. A two-stall garage provides room for vehicles, tools, and weekend adventure gear.

Get pricing

Floor Plans

Photos Coming Soon!